PAYRA PORT – Ancillary Facilities – Landscape – 16 Acre

PAYRA PORT – Ancillary Facilities – Landscape – 16 Acre

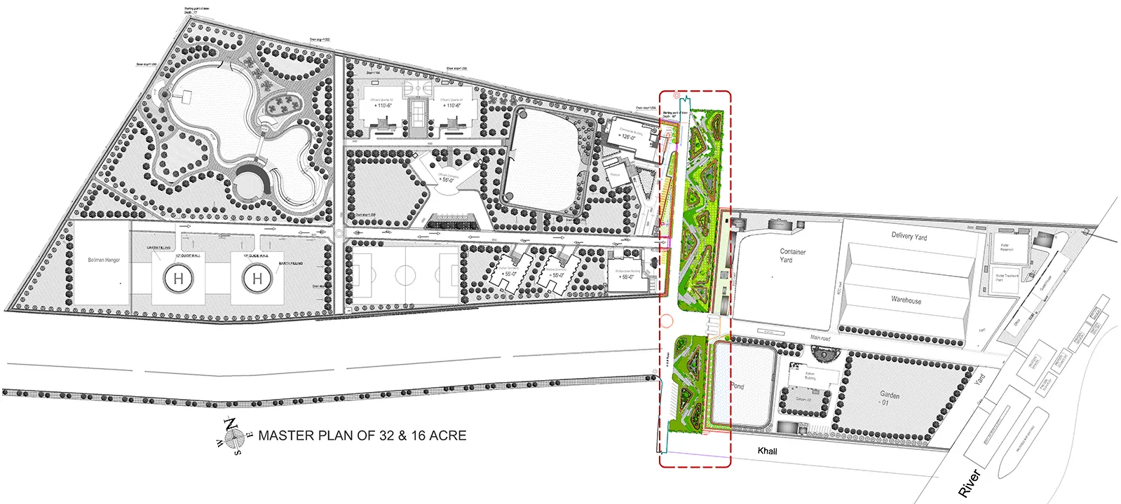
Project Overview

The landscape is located in front of the Payra Port 16 acres gate and has been designed as part of the beautification and masterplan development process.

Client
Payra Port Authority
Location
Kalapara, Patuakhali, Barisal
Category
Landscape Design
Architecture
Project Area
16 acre

More Projects

A selection of other works that reflect our architectural approach and values.