Ramgarh Landport - Masterplan

Ramgarh Landport - Masterplan

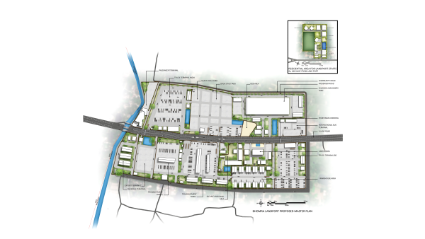
Project Overview

Ramgarh is a completely new port which will connect Tripura region of India with Bangladesh through “Maitri Setu” over Feni River. In the first phase 10.24 Acre land will be developed within 2023. It is planned to have one stop Port Building, Warehouse, Bangladeshi Truck terminal, Indian Truck holding Area, Transshipment area, Export Yard, Open Yard etc. These Functions are essential for running the port. From studying different existing port it was found that there’s inadequate facilities for drivers & labors, so facilities of drivers and labors are provided in Truck terminal & transshipment yard and Export yard.
5 nos. Watchtowers are placed around the site for security purpose. In the response to the nature river bank shore protection is constructed with green belt, inside the site as much as possible soak-able green area is kept untouched. STP is also proposed to prevent waste water contamination. For waste management waste bins are placed in different areas of site, a garbage collection point is also designed for central garbage management. An overpass is recommended to be built for hassle-free passage through the land port over main road. All the function are placed by dividing the site into 3 zones: Administrative & Service zone, Operational zone and Residential zone ;

• Administrative & Service zone: Contains One stop Port Building, Substation, Pump House, Security Barrack, and Garbage collection Point. Fire Station is placed near the Entry-Exit point for convenience.
• Operational zone: Consists of Inspection area & weigh bridge office, Warehouse, Transshipment Area, Truck terminal & holding area, Toilet Complex & labor Shed, Yard Office, Export Yard, Open Yard.
• Residential zone: Contains Dormitory, Rest House & play ground.

One of the major problem faced by most land port is traffic congestion. To solve this issue & faster and smooth circulation in operational area one way circulation is designed. At the entry and exit, Inspection Area and weigh bridge office is placed with the weighbridge. Separate Entry & road is designed for one stop Port building. Required pavement is designed in such a way that the one stop port building is accessible from the operational area as well. Residential area is separated from the port area, but still it’s connected via pavement, and fence gate. All the facilities are connected through roads & pavements for smooth management.

Client
Bangladesh Land Port Authority
Location
Ramgarh, Khagrachori
Category
Land Port Masterplan Design
Planning
Project Area
10.24 Acre

More Projects

A selection of other works that reflect our architectural approach and values.