Feasibility Study for Development of Afsar Cotton Mill Site at Savar

Feasibility Study for Development of Afsar Cotton Mill Site at Savar

Project Overview

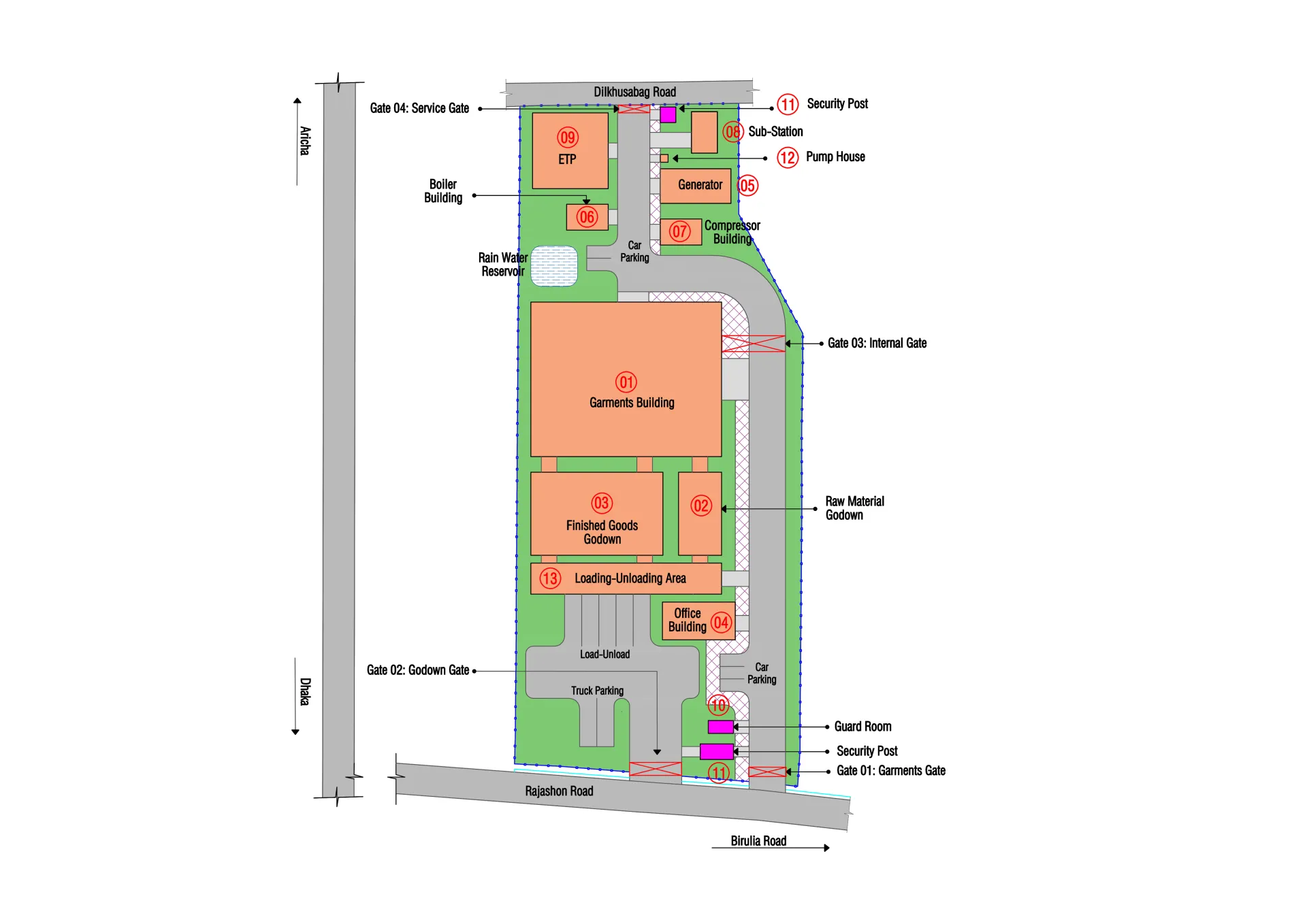
The feasibility study for the Development of Afsar Cotton Mill Site at Savar through Public–Private Partnership (PPP) was undertaken to assess the technical, environmental, and financial viability of redeveloping the existing industrial land into a modern, efficient, and compliant industrial facility. The project site covers an area of approximately 1.64 acres, located in a strategically important industrial zone of Savar with access to regional road networks, utilities, and labor resources. The objective of the assignment was to develop an integrated planning and design framework that supports sustainable industrial operations while ensuring regulatory compliance and cost efficiency.
Detailed Description of Actual Services Provided by your Staff:
-Layout plan
-Masterplan of 1.64 acres area
-Soil investigation review
-Design for 01 industrial buildings with administrative, ETP, boiler, generator room & sub station
-Pavement design of 0.07 acre
-Road design of 0.20 acre
-Design for boundary wall & gate
-Preparation of Tender Document
-Environmental assessment
-Construction cost estimation

Client
Bangladesh Textile Mills Corporation through IIFC/Bangladesh
Location
Savar, Dhaka
Category
Feasibility Study
Planning
Project Area
1.64 Acre

More Projects

A selection of other works that reflect our architectural approach and values.